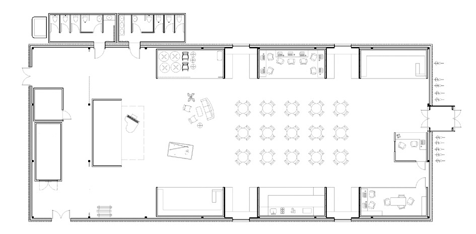
The proposal aims to provide temporary accommodation for a Students Union premises. The proposed building should have a minimum life span of 5 years, after which it should be dismantled and the constituent parts should be recycled. In response to the brief, the design consists of an open plan shed-like structure accommodating the required functions on the perimeter, within purpose built timber containers. Between every container there is an alcove with a window. The remaining space therefore becomes a large “arena” able to accommodate several uses such as coffee tables, concerts or exhibitions.
S U
/Type: Students Union /Location: London, UK /Surface: 550 msq /Status: New built /Stage: Academic Project /Date: Feb 2006