Design
Stone Wall House
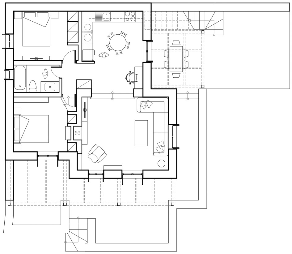
/Type: Private Residence /Location: Aegina, GR /Surface: 80 msq /Status: New built /Stage: Completed /Date: Jul 2013 /Photos: Aris Kamarotos
/Type: Private Residence /Location: Aegina, GR /Surface: 80 msq /Status: New built /Stage: Completed /Date: Jul 2013 /Photos: Aris Kamarotos