Timber Frame House
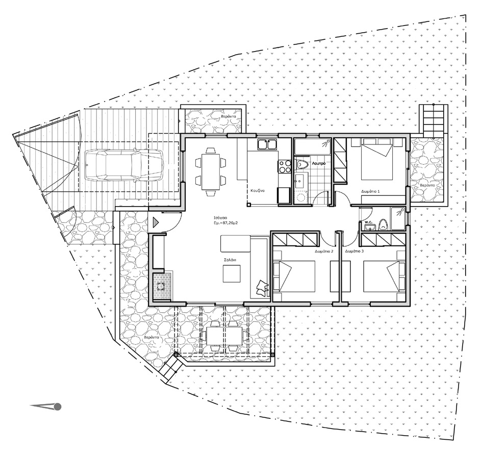
/Type: Private Residence /Location: Kiato, GR /Surface: 90 msq /Status: New built /Stage: Planning Permission /Date: Apr 2012
/Type: Private Residence /Location: Kiato, GR /Surface: 90 msq /Status: New built /Stage: Planning Permission /Date: Apr 2012