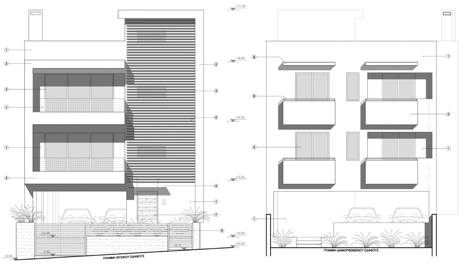
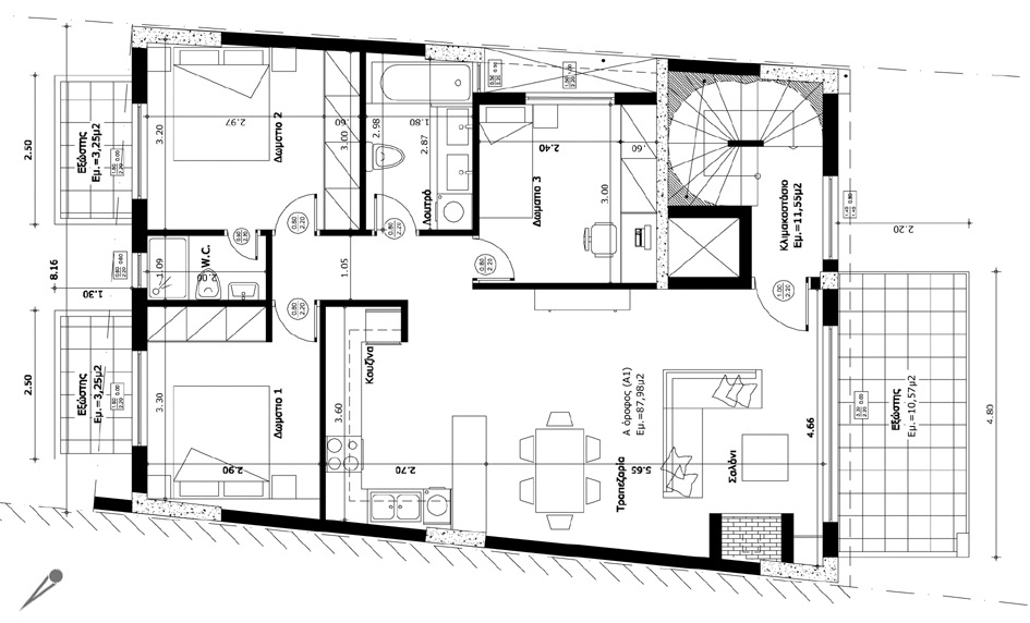
Pilotis I
/Type: Housing Block /Location: Athens, GR /Surface: 200 msq /Status: New built /Stage: Planning Permission /Date: Jun 2010 /Collaboration: Vaso Skevi
/Type: Housing Block /Location: Athens, GR /Surface: 200 msq /Status: New built /Stage: Planning Permission /Date: Jun 2010 /Collaboration: Vaso Skevi